Northern Whaling and Trading Company Store
This building was constructed in 1926 to serve as a warehouse and store for the Northern Whaling and Trading Co. Shortly after the main portion of the building was finished, an addition was constructed along the west side of the building. Minor repairs were carried out to conserve the building in its existing configuration. Recently the building’s addition was dismantled down to its floor framing due to extensive storm damage and undermining. The floor framing has been left in place to assist in the stabilization of the beach along the west side of the building. The building serves as a storage area for Park operations.
Region:
Yukon
Field Documentation:
July 19, 2018
Field Documentation Type:
Terrestrial LiDAR
Historic Period:
1926CE
Latitude:
69.569337
Longitude:
-138.917268
Threat Level
History
During the late 19th century the whaling industry expanded to the Beaufort Sea. This industry was driven by a demand for oil and baleen, a highly popular construction material valued for its combined strength and flexibility [1]. As whale stocks began to be depleted, whaling ships started to sail into the Beaufort Sea to hunt whales, particularly bowheads. In 1890 the

Mary D. Hume ship of the Pacific Steam Whaling Company (PSWC) was the first to reach the island, see the PSWC bonehouse and community house. Pauline Cove became an advance whaling base from which expeditions could be launched. Crews would overwinter at the site where they would spend their time rendering blubber aboard the ships, gathering firewood, hunting, and taking part in a range of social activities to pass the time. Once winter was over, these crews were already in position to begin hunting whales without having to wait for the sea ice at Point Barrow to break, allowing for access to the northern waters earlier.
The Northern Whaling and Trading Company (NWTC) arrived at Herschel Island later, but still used it as an important whaling base. The NWTC Store and Warehouse, or building no. 1, is one of the three buildings constructed by the company on Herschel Island, see also the NWTC shed and warehouse. Built in 1926 this building was used both as a store and warehouse [1]. This remained the function of this structure until 1936 when the parent company of the Northern Whaling and Trading Company, Canalaska Trading Co was sold to the Hudson’s Bay Company. The Hudson’s Bay Company set up their post on Herschel Island in 1915, but just a year after the Canalska Co sale in 1937 the Hudson’s Bay Company closed their Herschel Island post. From then on, the North-West Mounted Police who had established a sub-district headquarters post in Pauline Cove in 1903 then took over the care of the building until they left in 1964 [1,2]. Now the building operates as a storage area for park operations.
Construction
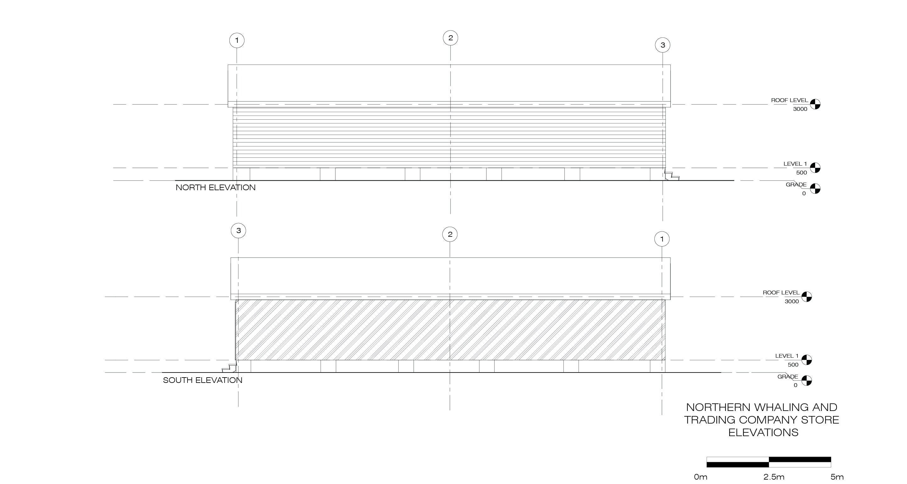
The store and warehouse is a one storey frame building with a trussed gable roof [1]. The walls are covered in tongue and groove lumber with galvanized sheet metal on the south, east, and west sides. The roof of the building is also covered in galvanized metal sheeting laid over skip sheathing, and on the interior the framing of the building is exposed [1]. An interior partition makes a small room at the back of the building. Shortly after its construction in 1926 an addition was added along the west-side of the building. The materials for the construction of the warehouse would have been brought to Herschel by the Whaling and Trading Company and constructed by a combination of the Euro-American whalers and hired Inuvialuit workers [1].

Environmental Impacts
In the 1990s sea surges and wave action started to undermine the foundation of the NWTC store [1]. In an attempt to stabilize the structure sand bags were placed along the shoreline here in 1998. Nevertheless, there continued to be shoreline and foundation degradation and in 2003 the decision was made to relocate this building along with the NWTC warehouse approximately five metres back [1]. In 2004, these buildings were lifted and moved another five meters, and the NWTC shed was also moved in order to re-establish its location in relation to the other company buildings [1]. The store building has been left lifted in an effort to mitigate future impacts.
Current Condition
The warehouse now is operated as a storage facility and workshop for the park operations. Throughout its life it has undergone minor repairs to conserve the building how it looks today.
Notes
[1] Preservation Plan. 1990 Herschel Island Historic Resources Preservation Plan. Final report, December, prepared by Heritage Branch, Department of Tourism, Yukon.
[2] Yukon Government. 2011 Herschel Island: Qikiqtaruk. A Guide to Historic Resources. Electronic document, https://yukon.ca/sites/yukon.ca/files/tc/tc-herschel-island-qikiqtaruk-guide.pdf, accessed March 11, 2020.
[3] Yukon Environment. 2006 Herschel Island Qikiqtaruk Territorial Park Management Plan. Prepared with the Inuvialuit Game Council, the Aklavik Hunters and Trappers Committee along with the Wildlife Management Advisory Council (North Slope) for the Yukon Government.
[4] Burn, Christopher R. (editor). 2012. Herschel Island Qikiqtaryuk: a Natural and Cultural History of Yukon’s Arctic Island. Library and Archives Canada Cataloguing in Publication, Calgary.
This gallery contains images of the Northern Whaling and Trading Company Store. The close proximity of this building to the shoreline places it at considerable risk due to storm surges, flooding, and ice rafting. Some images in this photo gallery are credited to Sandra Angers-Blondin, Instagram, other images are courtesy of the Yukon Government.
Open Access Data
The raw data files for this project are available for download from the archive repository. Scans are .las file format. Please download the metadata template to access metadata associated with each file. All data is published under the Attribution-Non-Commercial Creatives Common License CC BY-NC 4.0 and we would ask that you acknowledge this repository in any research that results from the use of these data sets. The data can be viewed and manipulated in CloudCompare an opensource software.
Click on the 3D model of Pauline Cove. Marker (4) shows the location of the Northern Whaling and Trading Company Store within the settlement. Its close proximity to the shoreline make it among the most at risk heritage buildings on Qiqiktaruk/Herschel Island.
The architectural drawings below were created by Elizabeth Cook, a student in the School of Architecture, Planning and Landscape (SAPL) at the University of Calgary. The drawings were created in Autodesk Revit BIM software using the point clouds captured by the Z+F 5010X and Leica BLK360 scanners. Building Information Modeling (BIM) involves the generation and management of digital representations of the physical and functional characteristics of spaces. We are currently exploring how BIM can be linked with heritage strategies currently used to manage the historic buildings at Pauline Cove – especially in light of current climate change impacts.
Digitally Capturing the Northern Whaling and Trading Company Store and Warehouse
The Northern Whaling and Trading Company Store and Warehouse was first digitally captured in July, 2018. The exterior was documented with a Z+F 5010X scanner and mounted paper targets, using 11 scanning locations situated roughly in a circle around the building (red dots). The targets were strategically placed around the building and external area, such that no less than three were visible in each scanning location. The exterior scan was registered using Z+F Laser Control software and then exported into AutoDesk ReCap Pro for further processing.
In July, 2019 the interior of the structure was captured using a Leica BLK 360 scanner using 16 scanning locations in a zig-zag pattern (blue dots). No targets were used to capture the interior of the building, and scans were registered together using cloud-to-cloud registration in AutoDesk ReCap Mobile and Pro.
To combine the exterior and interior scans, one scanning position on the exterior was placed in front of the open doorway into the building to capture portions of the interior. The interior and exterior scans were then registered together in AutoDesk ReCap Pro using cloud-to-cloud registration based on the common data from that scanning position.
Scan Locations
Grab the Slider With Your Mouse and Move it Left and Right to Compare Images.
Historical Photograph